自考题库
首页
所有科目
自考历年真题
考试分类
关于本站
游客
账号设置
退出登录
注册
登录
出自:测绘案例分析
下列空间部位中,其水平投影面积不得作为房屋共有面积分摊的有()。
A:为多个小区服务的警卫室
B:小区内地面停车场
C:住宅楼层顶电梯机房
D:小区内独立地下车库
E:住宅地下室人防工程
地下管线点的测量精度为:相对于邻近控制点,点位平面位置中误差不超过()。
A:±3cm
B:±4cm
C:±5cm
D:±6cm
测绘单位必须建立以()为中心的技术经济责任制,明确各部门、各岗位的职责及相互关系,规定考核办法,以作业质量、工作质量确保测绘产品质量。
A:效率
B:速度
C:数量
D:质量
测设的基本内容有()
A:测图
B:高程放样
C:直线放样
D:角度放样
E:点位放样
影响符号设计的因素有琊些?
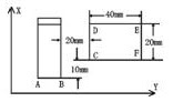
已知XA=50.00m,YA=40.00m,XB=50.00m,YB=60.00m,根据下图数据求出C、D、E、F四个点的坐标值。
某点的大地经纬度为31°01′07″,105°10′30″,按照3°带进行高斯投影,其所属的带号应是()。
A:34
B:35
C:36
D:37
地貌的表示方法主要有()
A:写景法
B:晕滃法
C:晕渲法
D:等高线法
地图投影
下列
不属于
平面曲线的是()。
A:竖曲线
B:缓和曲线
C:回头曲线
D:圆曲线
分包任务质量责任由哪方负责?()
A:总承包方向发包方负完全责任
B:分包方向发包方负完全责任
C:监理方负完全责任
D:总承包方和分包方共同向发包方负责任
根据《注册测绘师执业管理办法(试行)》,下列文件中,孺要由注册测绘师签字并加盖执业印章的有()
A:项目合同
B:成果质量检查报告
C:最终成果文件
D:仪器检定报告
E:项目监理报告
质量管理体系文件的编写原则是()。
A:系统协调原则
B:整体优化原则
C:局部优化原则
D:采用过程方法原则
GIS软件测试四个基本步骤的先后顺序是()。
A:系统测试、确定测试、联合测试、模块测试
B:模块测试、确定测试、联合测试、系统测试
C:系统测试、联合测试、确定测试、模块测试
D:模块测试、联合测试、确定测试、系统测试
洞内平面控制测量常采用的方法是()。
A:中线法
B:导线测量
C:腰线测量
D:GPS测量
E:GPSRTK
测绘技术设计的目的是()
A:制定切实可行的技术方案
B:保证测绘成果(或产品)符合技术标准和满足顾客要求
C:获得最佳的社会效益和经济效益
D:满足规定要求
工程测量控制网按用途划分为()
A:测图控制网
B:施工控制网
C:变形监测网
D:安装控制网
用经纬仪测水平角,由于对中误差,目标偏斜致使水平角产生误差.这种误差()
A:边长越长,误差越大
B:边长越短,误差越大
C:边长越长,对中误差对澜角精度影响大,目标偏斜影响小
D:边长越短,对中误差对测角精度影响大,目标偏斜影响小
测绘单位应当在关键工序、重点工序设置必要的检验点,实施工序产品质量的现场检查。现场检验点的设置,可以根据下列哪些因素,由测绘单位自行确定()
A:测绘任务的性质
B:作业人员水平
C:降低质量成本
D:现场周围的环境情况
工程测量平面控制网精度等级的划分,下列说法正确的是()
A:卫星定位测量控制网依次为A、B、C、D、E级
B:卫星定位测量控制网依次为二、三、四等和一、二级
C:三角形网依次为二、三、四等和一、二级
D:导线及导线网依次为三、四等和一、二、三级
外国组织或者个人在中华人民共和国领域从事测绘活动必须满足下列条件()。
A:经国务院测绘行政主管部门会同军队测绘主管部门批准
B:与中华人民共和国有关部门或者单位依法采取合资、合作的形式进行
C:不得涉及国家秘密和危害国家安全
D:遵守中华人民共和国有关法律、行政法规的规定
下列不是电子地图功能的是()。
A:输入功能
B:地图管理功能
C:数据更新功能
D:检索查询功能
下列关于大地水准面的描述中,错误的是()
A:大地水准面是一个参考椭球面
B:大地水准面是一个重力等位面
C:大地水准面是一个几何面
D:大地水准面是一个物理面
我国采用的高程系是()
A:正高高程系
B:近似正高高程系
C:正常高高程系
D:动高高程系
渠道、管道线路工程测量内容及程序为()
A:收集图纸及资料,现场勘察、规划及纸上定线
B:中线测量
C:纵横断面田测量
D:施工测量
E:竣工测量
与房屋相连有上盖无柱的走廊、檐廊,按其围护结构外围水平投影面积的()计算
A:一半面积
B:全面积
C:不计面积
D:根据情况
房屋用地调查与测绘以()为单位分户进行
A:宗地
B:丘
C:地块
D:街道
下列关于遥感影像分类的描述中,
不属于
面向对象分类的是()。
A:从影像对象中可以提取多种特征用于分类
B:不同地物可以在不同尺度层上进行提取
C:分类过程是基于错分概率最小准则
D:利用光谱特征和形状特征进行影像分割
三角高程测量是根据两点的()计算两点的高差
A:水平角
B:斜距
C:平距
D:竖直角
E:仪器视线高程
质量控制是指()。
A:产品的质量符合规范、标准和图纸要求
B:为达到质量要求所采取的作业技术和活动
C:通过采取一系列的专业技术和活动对各个过程实施控制
D:确定产品质量的目标和要求的活动
首页
<上一页
48
49
50
51
52
下一页>
尾页