自考题库
首页
所有科目
自考历年真题
考试分类
关于本站
游客
账号设置
退出登录
注册
登录
出自:电气工程师发输变电
校验不接地、消弧线圈接地和高电阻接地系统中电气设备接地线的热稳定时,敷设在地上的接地线长时间温度不应大于()℃。
A:70
B:100
C:150
D:280
35kV中性点不接地系统中,为防止电压互感器过饱和而产生铁磁谐振过电压,下列哪项措施是不当的()?
A:选用铁磁特性饱和点较高的电磁式电压互感器
B:减少同一系统中电压互感器中性点的接地数量
C:装设消谐装置
D:装设氧化锌避雷器
安全距离也用于防止车辆等物体碰撞或过分接近带电体以及带电体之间发生()和短路而引起火灾和电气事故。
A:碰撞
B:放电
C:连接
D:接触
高压系统短路电流的计算条件是()。
A:计算220/380V网络三相短路电流时,计算电压CUn取电压系数C为1.05,计算单相接地故障电流时,C取1.0,Un为系统标称电压(线电压)380V
B:一般用电单位的电源来自地区大中型电力系统,配电用的电力变压器的容量远小于系统的容量,因此短路电流可按远离发电机端,即无限大电源容量的网络短路进行计算,短路电流周期分量不衰减
C:单位线路长度有效电阻的计算温度不同,在计算三相最大短路电流时,导体计算湿度取为20℃;在计算单相短路(包括单相接地故障)电流时,假设的计算温度升高,电阻值增大,其值一般取20℃时电阻的1.5倍
D:当电路电阻较大,短路电流非周期分量衰减较快,一般可以不考虑非周期分量。只有在离配电变压器低压侧很近处,例如低压侧20m以内大截面线路上或低压配电屏内部发生短路时,才需要计算非周期分量
某房间的面积为6×12m2,净高3.8m,顶棚、墙壁和地面的反射系数分别为ρ顶=0.7、ρ地=0.3、ρ墙=0.5。现采用乳白玻璃圆球罩灯具(ψ=2090lm),其发光效率为70%,悬挂高度为3m,KL=0.54,Kj减光系数取0.7,工作面高度为0.8m。现要求室内的平均照度为200lx。试确定照明器的数量。
变压器经济运行的措施有()。
A:选择变压器的容量及台数时,应根据计算负荷,负荷性质,生产班次等条件进行选择
B:向一、二类负荷供电的变压器,当选用两台变压器时,应同时使用,以保证变压器的经济运行
C:对于夜里或节假日里不生产的车间或设备,可把其中不能停电的负荷集中到某一台变压器上,设置专用变压器供电,停用其他变压器,以利节电
D:不允许变压器长期空载运行
低压并联电容器装置()采用自动投切装置。
A:宜
B:应
C:不宜
D:不应
乙类厂房的配电所当防火墙上设置门、窗时,应采用()级防火门、窗。
A:甲
B:乙
C:丙
D:丁
应急照明的电源,应根据应急照明类别、场所使用要求和该建筑电源条件,采用下列方式中的()。
A:接自电力网有效地独立于正常照明电源的线路
B:蓄电池组,包括灯内自带蓄电池、集中设置或分区集中设置的蓄电池装置
C:应急发电机组
D:手动切换装置
将电气设备安装在非导电场所内。如果所在场所有绝缘的地板和墙,其每点的对地电阻当装置额定电压不超过500V时,不小于()kΩ。
A:500
B:100
C:75
D:50
借助《工业与民用配电设计手册》第三版第891页表14-12及有关曲线,估算矩形基础板的接地电阻。已知条件如下: ①基础板长边的边长L1=100m,短边的边长L2=10m; ②基础深度t=3m; ③土壤电阻率ρ=100Ω·m。该基础板的接地电阻约为()。
A:0.5Ω
B:1Ω
C:2Ω
D:4Ω
合理选择线路导线截面是供配电系统节能措施之一。线路架设时,应按经济电流密度来选择导线截面,经济电流密度是综合考虑()因素后制定的。
A:供电电压等级
B:年运行费用
C:有色金属消耗
D:建设投资
下列哪种旋转电动机的防爆结构不符合爆炸危险区域为1区的选型规定()?
A:正压型防爆结构适用于笼型感应电动机
B:增安型防爆型适用于同步电动机
C:正压型防爆结构直流电动机慎用
D:隔爆型防爆结构绕线转子感应电动机慎用
直流电的时间/电流不安全区域为()。
A:DC-1
B:DC-2
C:DC-3
D:DC-4
在爆炸性气体环境:1区、2区内,引向低压鼠笼型感应电动机支线的长期允许载流量,不应小于电动机额定电流的()倍。
A:2
B:2.5
C:1.25
D:1.05
重要电力设施中的主要建筑物以及国家生命线工程中的供电建筑物为()。
A:一类建筑物
B:二类建筑物
C:三类建筑物
D:四类建筑物
篮球等项目的室外比赛应比室内比赛照度标准值()。
A:提高一级
B:降低一级
C:不变
D:降低二级别
跨步电压是指人活动在具有分布()的地面,人的两脚之间所承受的电压差。
A:电流
B:电压
C:电位
D:接地电阻
在爆炸性气体环境中的各种电气设备的选型应符合有关规定。请根据设计规范进行下列设备选型。在爆炸性气体危险区域为I区的场所应慎用的灯具为()。
A:增安型固定式灯
B:隔爆型移动式灯
C:隔爆型携带式电池灯
D:隔爆型指示灯
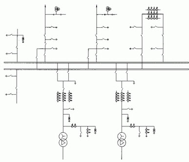
建设在海拔为2000m、污秽等级为Ⅲ级的220kV屋外配电装置,采用双母线接线,有2回进线,2回出线,均为架空线路,220kV为有效接地系统,其主接线如图所示。
()图中变压器中性点氧化锌避雷器持续运行电压和额定电压为哪个?
A:持续运行电压为0.13Um,额定电压为0.17Um
B:持续运行电压为0.45Um,额定电压为0.57Um
C:持续运行电压为0.64Um,额定电压为0.8Um
D:持续运行电压为0.58Um,额定电压为0.72Um
已知地区电网短路容量为150MVA,基准电压为10.5kV,求阻抗的有名值为()。
A:0.85Ω
B:0.735Ω
C:0.453Ω
D:1.25Ω
主要供给气体放电灯的()配电线路,其中性线(N线)截面应满足不平衡电流及谐波电流的要求,且不应小于相线截面。
A:三相四线制
B:三相三线制
C:单相三线制
D:单相四线制
工业电阻炉节能效果的设备节电量计算用()计算。
A:节能率计算法
B:效率计算法
C:单耗计算法
D:节电型低压电器
已知发电机额定容量为15MVA,超瞬态电抗百分值x″d2=12.5,额定电压为10.5kV,电抗的有名值为()。
A:0.833Ω
B:0.919Ω
C:0.803Ω
D:1.125Ω
浴室喷淋头半径1m内设置插座时(只有一个最正确)应()。
A:不允许
B:装于1.8m以上
C:装于2.1m以上
D:装于2.3m以上
E:高度无限制
Ⅰ类设备的防触电保护不仅靠基本绝缘,还包括一种附加的安全措施,即()。
A:接地线与固定布线中的保护线连接
B:使用环境要与地绝缘
C:双重绝缘或加强绝缘
D:安全特低压供电
计算照度的基本方法有()。
A:利用系数法
B:逐点计算法
C:二项式法
D:单位容量估算法
消防控制室内()与消防控制室无关的电气线路和管路穿过。
A:不宜设
B:可设少量
C:严禁
D:尽量不设
某单回220kV架空送电线路,采用两分裂LGJ300/40导线,气象条件见表14-2。
若导线在最大风时应力为100N/mm2,最高气温时应力为50N/mm2,某直线塔的水平档距为400m,最高气温时的垂直档距为300m,计算最大风速垂直档距为()。
A:600m
B:200m
C:350m
D:380m
35kV电力线路上安装有管型避雷器时,保护装置的动作时间不应大于()s。
A:0.08
B:0.1
C:0.2
D:0.3
首页
<上一页
42
43
44
45
46
下一页>
尾页