自考题库
首页
所有科目
自考历年真题
考试分类
关于本站
游客
账号设置
退出登录
注册
登录
出自:基础考试
满足平衡条件,但切应力超过比例极限时,有下述四种结论:()
A:A
B:B
C:C
D:D
利用土工合成材料的排水功能,可选择的主要产品是土工格栅。
四种应力状态分别如图所示,按照第三强度理论,其相当应力最大的是:()
A:状态(1)
B:状态(2)
C:状态(3)
D:状态(4)
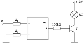
电路如图所示,运算放大器的最大输出电压为±12V,为了使灯HL亮,输入电压u
i
应满足()。
A:u
i
>0
B:u
i
=0
C:u
i
<0
D:任意数值
在三向等侧压条件下,岩石试件不会破坏。
下列各组有机物中属于同分异构体的是哪一组?()
A:A
B:B
C:C
D:D
在双缝干涉实验中,光的波长600nm,双缝间距2mm,双缝与屏的间距为300cm,则屏上形成的干涉图样的相邻明条纹间距为:()
A:0.45mm
B:0.9mm
C:9mm
D:4.5mm
无粘性土进行工程分类的依据是:()
A:塑性指数
B:液性指数
C:颗粒大小
D:粒度成分
材料不同的两根受扭圆轴,其直径和长度均相同,在扭矩相同的情况下,它们的最大切应力之间和扭转角之间的关系有四种答案:()
A:A
B:B
C:C
D:D
随着钢板厚度增加,钢材的:()
A:强度设计值下降
B:抗拉强度提高
C:可焊性提高
D:弹性模量降低
设竖向排水通道的排水预压加固效果主要取决于()。
A:地基土强度
B:地基土竖向渗透系数
C:地基土重度
D:地基土水平向渗透系数
一列机械横波在t时刻的波形曲线如图所示,则该时刻能量处于最大值的媒质质元的位置是:()
A:a
B:b
C:c
D:d
高应变法动力试桩需要在桩内安装测管。
记极限
,
,则()
A:A>B
B:A<B
C:A=B
D:A、B中至少有一个不存在
北方某地标准冻深为1.0m,地基土质均匀。下面哪种地基既有发生较大冻胀的可能,又有发生振动液化的可能?()
A:地下水位很深,土质为风干的粉细砂
B:地下水位与地面平齐,土质为饱和的黏土
C:地下水位与地面平齐,土质为饱和的密实细砂
D:地下水位在地面下1m处,土质为疏松的粉土
矩形断面输水明渠如图所示,断面尺寸为2m×1m,渠道的谢才系数C=48.5m
1/2
/s,输水1000m长度后水头损失为1m,则断面平均流速v为:()
A:1.511m/s
B:1.203m/s
C:0.952m/s
D:1.084m/s
光强为I
0
的自然光垂直穿过两个偏振化方向成45°的偏振片,若不考虑偏振片的反射和吸收,则出射光强I
0
与入射光强I之比为:()
A:1/4
B:3/8
C:1/2
D:3/4
木材平衡含水率随空气温度和相对湿度的变化而变化。
对于机械横波而言,下面说法正确的是:()
A:质元处于平衡位置时,其动能最大,势能为零
B:质元处于平衡位置时,其动能为零,势能最大
C:质元处于波谷处时,动能为零,势能最大
D:质元处于波峰处时,动能与势能均为零
如果一定量理想气体的体积V和压强p依照
的规律变化,式中a为常量,当气体从V
1
膨胀到V
2
时,温度T
1
和T
2
的关系为:()
A:T
1
>T
2
B:T
1
=T
2
C:T
1
D:无法确定
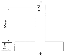
图示容器,面积A
1
=1cm
2
,A
2
=100cm
2
,容器中水对底面积A上的作用力为:()
A:98N
B:24.5N
C:9.8N
D:1.85N
低应变法动力试桩可以得出桩的承载力。
混凝土双向受力时,何种情况下强度最低?()
A:两向受拉
B:两向受压
C:一拉一压
D:两向受拉,且两向拉应力值相等时
题图a)所示悬臂梁,给出了1、2、3、4点处的应力状态如题图b)所示,其中应力状态错误的位置点是:()
A:1点
B:2点
C:3点
D:4点
下列物质使溴水褪色的是:()
A:乙醇
B:硬脂酸甘油酯
C:溴乙烷
D:乙烯
图示结构,若取梁B截面弯矩为力法的基本未知量Xl,当I
2
增大时,则X
1
绝对值的变化状况是:()
A:增大
B:减小
C:不变
D:增大或减小,取决于I
2
/I
1
比值
地基原位试验结果中需要进行杆长修正的是()。
A:标准贯入
B:静力触探
C:十字板试验
D:动力触探
岩体三轴强度试验时,轴向加压方式主要有()。
A:逐级一次循环加压
B:逐级连续加压
C:按比例加压
D:逐级一次反复循环加压
除剪切流变试验外,在常规的岩石剪切试验中,大致分()施加剪切载荷。
A:快速剪切法
B:慢速剪切法
C:时间控制法
D:变形控制法
等直杆承受轴向载荷,其相应轴力图为()
A:A
B:B
C:C
D:D
首页
<上一页
33
34
35
36
37
下一页>
尾页